Comércio Para Venda

Loja - Mercês - Mem Martins

Algueirão-Mem Martins   Sintra   Lisboa

ID ZMPT7538504

3.21811515 BTC

Todas as fotografias
Atributos
  • 4 Assoalhadas
  • 2 WC's
Vista cidade
Arrecadação / Anexos
  • CONDIÇÃO: Usado
  • ANO DE CONSTRUÇÃO: 2008
  • ÁREA ÚTIL: 234m2
  • ÁREA BRUTA: 234m2
  • ÁREA DE IMPLANTAÇÃO: 625m2
  • ÁREA TERRENO: 744m2
Detalhes
Identificação do imóvel: ZMPT7538504

Loja - Mercês - Mem Martins

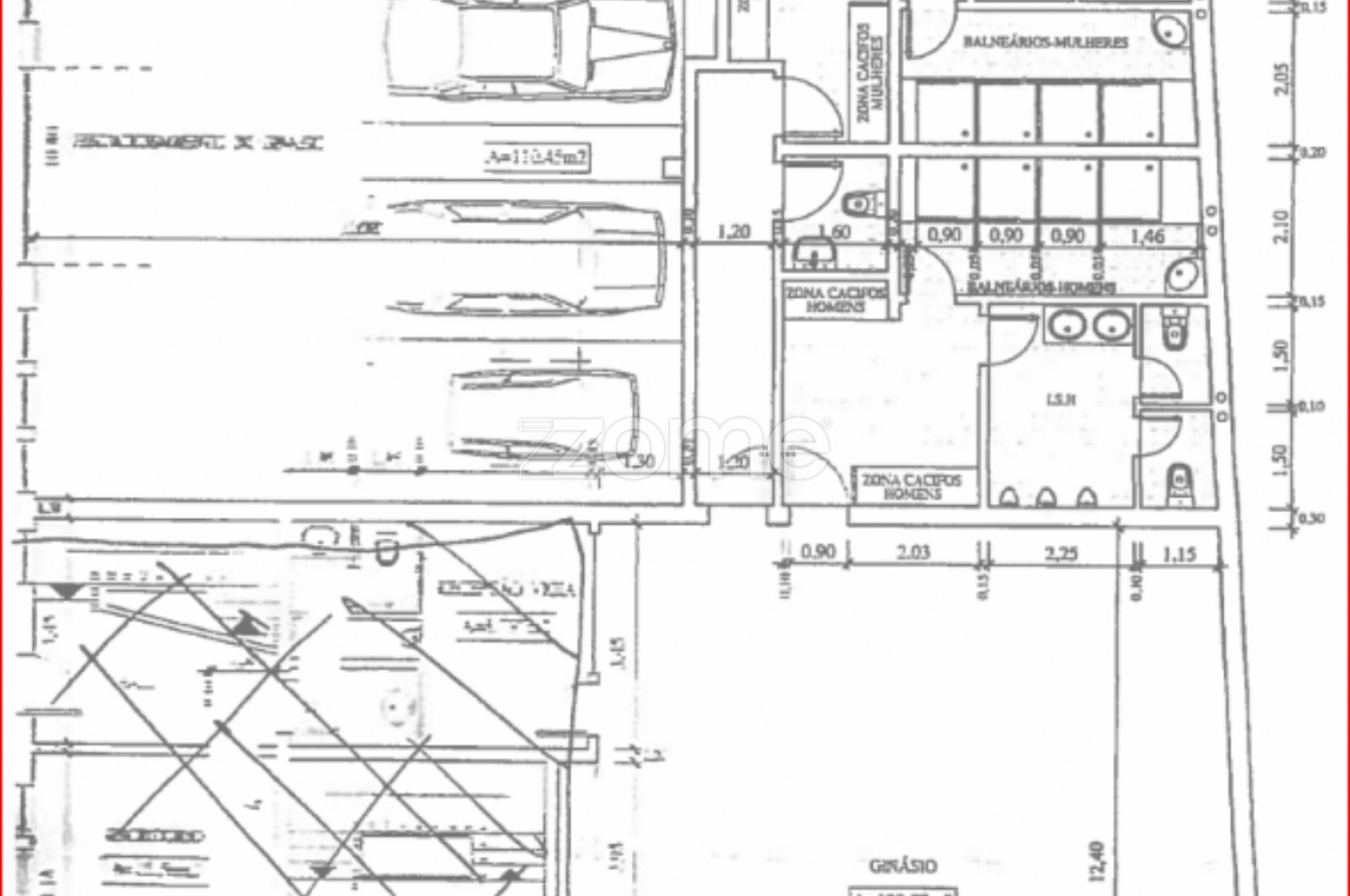
Loja com alvará para Ginásio, com 2 balneários: masculino e feminino.
Bem localizado, próximo à estação CP das Mercês, comércio e serviços.
...
Ver mais
Localização
Abrir no google maps
Abrir vista de estrada
Entrar em contacto

ZOME PR1ME

Estrada Nacional 249/4, Edifício Pr1me
2785-015 São Domingos de Rana

(Centro da Abóboda)

AMI 4662

Parceiros e reconhecimento
Ligar