Moradia T5+2 Para Venda

Edifício Habitacional Centenário em São Sebastião, Ponta Delgada

Ponta Delgada (São Sebastião)   Ponta Delgada   Ilha de São Miguel

ID ZMPT7577966

10.96901403 BTC

Todas as fotografias
Apresentação
Atributos
  • 7 Quartos
  • 11 Assoalhadas
  • 2 WC's
  • 1 Lugar (parqueamento)
4 Varanda(s)
1 Quintal / Jardim
1 Terraço
4 Sala(s)
2 Cozinha(s)
Obras no imóvel: Poucas
Orientação solar: Este, Oeste, Sul
Boa exposição solar
Distância à cidade
Kitchenet
Sotão
Vista campo
Vista cidade
Arrecadação / Anexos
Churrasqueira / Barbecue
Hall de entrada
Vidros duplos
  • CONDIÇÃO: Usado
  • ANO DE CONSTRUÇÃO: 1937
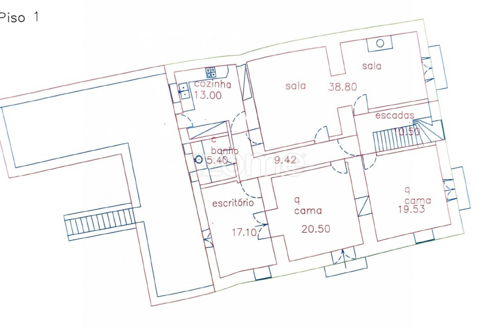
  • ÁREA ÚTIL: 340m2
  • ÁREA BRUTA: 587m2
  • ÁREA DE IMPLANTAÇÃO: 247m2
  • ÁREA TERRENO: 753m2
Detalhes
Identificação do imóvel: ZMPT7577966

Apresentamos-lhe uma rara oportunidade de investimento no coração da cidade de Ponta Delgada, na freguesia de São Sebastião:
Um edifício habitacional centenário, repleto de história,...
Ver mais
Localização
Abrir no google maps
Abrir vista de estrada
Entrar em contacto

ZOME Azores

Rua de São Gonçalo, 235 - 1. ° Piso |
9500 - 343 Ponta Delgada

(Edifício 296 Auto)

AMI 20030

Parceiros e reconhecimento
Ligar