Apartment T2+1 For Sale

Apartamento T2+1 com varanda, em construção, situado no 3º piso.

Oliveira do Douro   Vila Nova de Gaia   Porto

ID ZMPT7583791

All photos
Presentation
Features
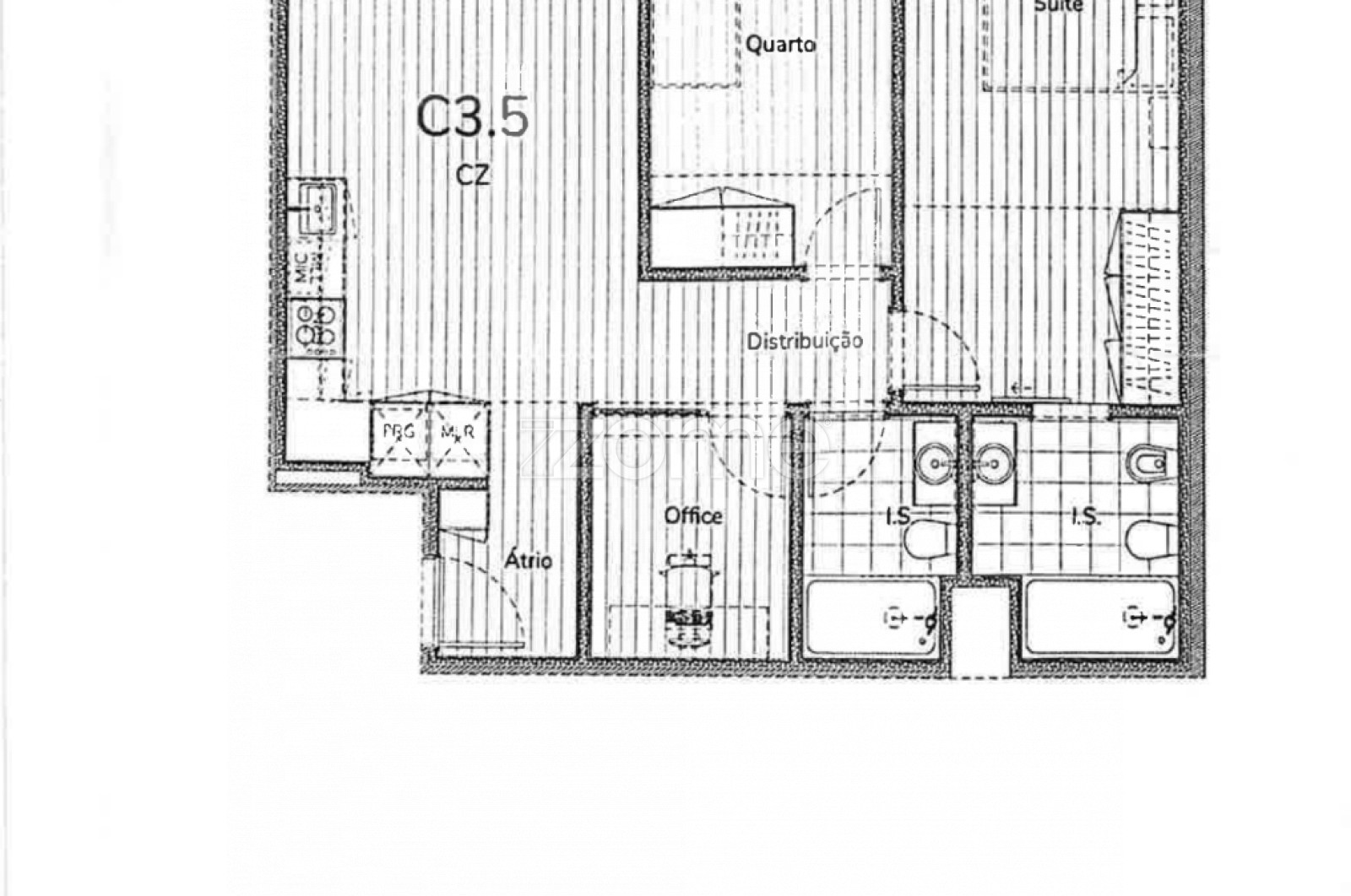
  • 2 Bedrooms
  • 1 Suite
  • 3 Rooms
  • 2 WC's
  • 1 place (garage open)
  • 1 place (parking)
Lift
Appropriate access for people with reduced mobility
1 Balcony
1 Living room
1 Kitchen
Furnished kitchen
Good sun exposure
Home automation
Kitchen fully equipped and granite worktops
Air conditioning
Closet
Entrance hall
  • CONDITION: New
  • USEFUL AREA: 81m2
  • GROSS AREA: 102m2
Details
Property ID: ZMPT7583791

Apartamento T2+1 com varanda em construção, situado no 1º piso em Vila Nova de Gaia.

O imóvel conta com 80,04m2, e distribui-se da seguinte forma:
•⁠  ⁠Hall de...
View more
Location
Open in Google Maps
Open street view
Contact us

ZOME Business

Centro Empresarial da Circunvalação - Estrada Interior da Circunvalação, nº 9543
4250-148 Porto

(Centro Empresarial da Circunvalação)

WHICH 17432

Partners and awards
Copyright CRYPTOHOUSES® 2023. All rights reserved.
Privacy policy Terms and conditions Alternative dispute resolution Complaint book
Call