Building T2 For Sale

Prédio p/ Recuperar c/Projeto Aprovado – Rua do Comércio, nº 79 Porto

Cedofeita, Santo Ildefonso, Sé, Miragaia, São Nicolau e Vitória   Porto   Porto

ID ZMPT7580861

All photos
Presentation
Features
  • 2 Bedrooms
  • 10 Rooms
  • 2 WC's
1 Yard / Garden
1 Terrace
1 Living room
1 Kitchen
Works in the property: Many
Good sun exposure
City view
  • CONDITION: to rebuild
  • YEAR OF CONSTRUCTION: 1950
  • ACCEPT EXCHANGE: Yes
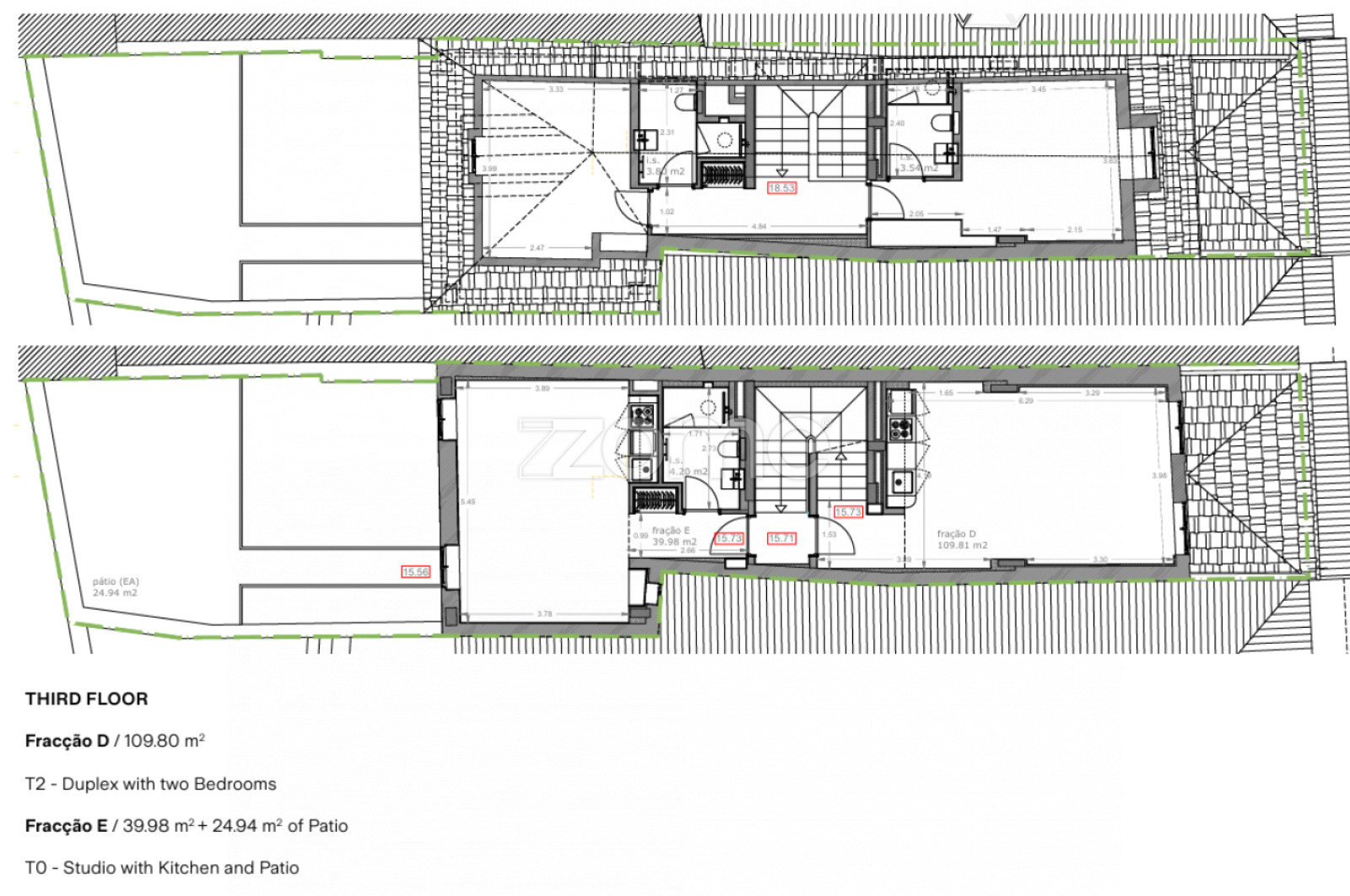
  • USEFUL AREA: 320m2
  • GROSS AREA: 342m2
  • HOUSE AREA: 115m2
  • LAND AREA: 147m2
Details
Property ID: ZMPT7580861

✨ Prédio p/ Recuperar c/Projeto Aprovado – Rua do Comércio, nº 79-81, Porto ✨

Excelente oportunidade de investimento no coração do Porto!
Trata-se de um prédio para reabilitar,...
View more
Location
Open in Google Maps
Open street view
Contact us

ZOME Business

Centro Empresarial da Circunvalação - Estrada Interior da Circunvalação, nº 9543
4250-148 Porto

(Centro Empresarial da Circunvalação)

WHICH 17432

Partners and awards
Copyright CRYPTOHOUSES® 2023. All rights reserved.
Privacy policy Terms and conditions Alternative dispute resolution Complaint book
Call