House T3 For Sale

Property with Approved Project – Maia (R. Sá e Melo, 386 – Gueifães)

Cidade da Maia   Maia   Porto

ID ZMPT7581054

3.66404125 BTC

All photos
Presentation
Features
  • 3 Bedrooms
  • 4 Rooms
  • 1 place (garage open)
  • 1 place (parking)
1 Yard / Garden
1 Living room
1 Kitchen
Works in the property: Many
Good sun exposure
Views to inner courtyard only
  • CONDITION: to rebuild
  • YEAR OF CONSTRUCTION: 1951
  • ACCEPT EXCHANGE: Yes
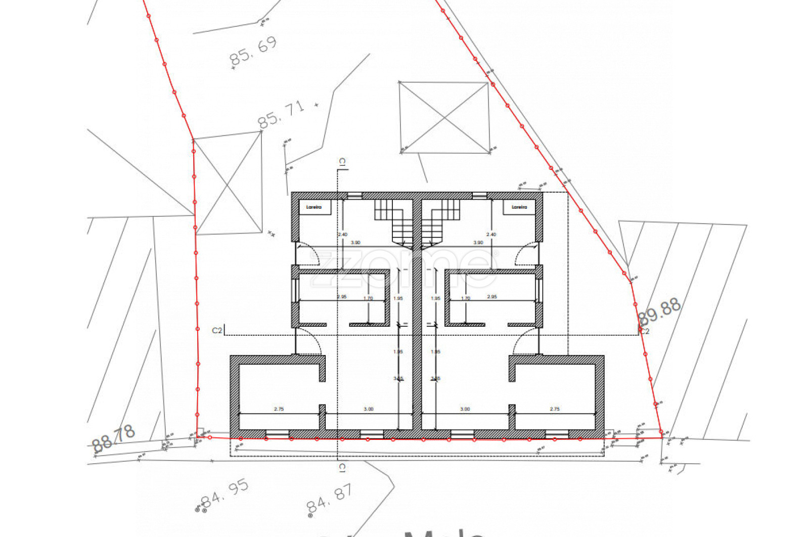
  • USEFUL AREA: 167m2
  • GROSS AREA: 168m2
  • HOUSE AREA: 84m2
  • LAND AREA: 464m2
View all areas
  • Yard / Garden:
  • 380m2
Details
Property ID: ZMPT7581054

We present this property with great potential, located in Gueifães, Maia, a quiet residential area with excellent access, just a few minutes from the city center.

The property consists of two...
View more
Location
Open in Google Maps
Open street view
Contact us

ZOME Business

Centro Empresarial da Circunvalação - Estrada Interior da Circunvalação, nº 9543
4250-148 Porto

(Centro Empresarial da Circunvalação)

WHICH 17432

Partners and awards
Copyright CRYPTOHOUSES® 2023. All rights reserved.
Privacy policy Terms and conditions Alternative dispute resolution Complaint book
Call