Land Urban For Sale

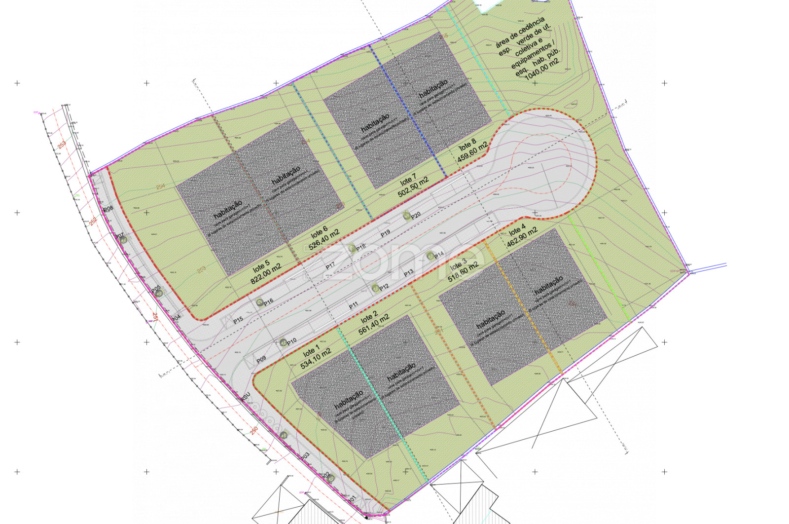
Terreno 10.500m² com projeto aprovado em Urgezes – Guimarães

Urgezes   Guimarães   Braga

ID ZMPT7581897

All photos
Features
City view
Countryside view
  • GROSS AREA: 6111m2
  • HOUSE AREA: 2037m2
  • LAND AREA: 10500m2
Details
Property ID: ZMPT7581897

Ideal para desenvolvimento habitacional ou loteamento urbano.

Com uma excelente exposição solar e vista para a Penha, e uma nova estrada proposta que melhorará os ...
View more
Location
Open in Google Maps
Open street view
Contact us

ZOME Business

Rua do Complexo Desportivo, 36
4715-027 Braga

(Junto à rotunda do BragaParque)

WHICH 17432

Partners and awards
Copyright CRYPTOHOUSES® 2023. All rights reserved.
Privacy policy Terms and conditions Alternative dispute resolution Complaint book
Call